Halfopen nieuwbouwwoning in Malle

Grondoppervlakte: 790m²
Woonoppervlakte: 245m²
Nieuw te bouwen moderne, bijna energie-neutrale woning, uitgevoerd in kwalitatief hoogwaardige materialen.
Ligging
Centraal gelegen nabij het centrum van Malle: Sint Lenaartseweg 88 te Malle.
Omschrijving
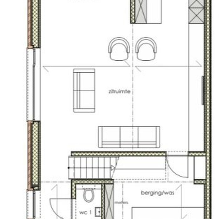
Inkomhal met gastentoilet en toegang tot bureauruimte aan straatkant- praktische berging/wasplaats, ruime, open en lichte zithoek, eetplaats en open keuken met toegang tot terras en grote O-gerichte tuin.
Eerste verdieping
3 ruime en lichte slaapkamers, ruime badkamer, apart toilet en bergruimte, grote nachthal met vaste trap naar 2e verdieping.
Op de tweede verdieping een grote vierde slaapkamer, grote berging en technische ruimte.
Uitvoering
Oplevering volgens lastenboek, met uitvoering in moderne lichte gevelsteen, zwarte ramen en zwarte dakpannen.
Start bouwwerken 2020. Bij snelle reactie nog inbreng in bepaalde uitvoeringskeuzes mogelijk
| Slaapkamers | 4 |
| Badkamers | 1 |
| Staat | Nieuwbouw |
| Bouwjaar | 2021 |
| Voorkooprecht | Nee |






